
Osiedle Qualia
Warszawa

Informacje
- Otaczające ulice
- Żwirki i Wigury, Wyjazd
- Rodzaj struktury
- Kompleks
- Funkcja główna
- mieszkalny
- Funkcja dodatkowa
- biurowy , hotelarski
- Status
- zarzucony
- Zakończenie budowy
- 2014 grudzień
- Inwestor/deweloper
- Qualia Development
Dane techniczne
- Powierzchnia biurowa
- 16400 m2
- Powierzchnia handlowo-usługowa
- 2100 m2
- Powierzchnia mieszkalna
- 44700 m2
- Lokale mieszkalne
- 818
- Pokoje hotelowe
- 180
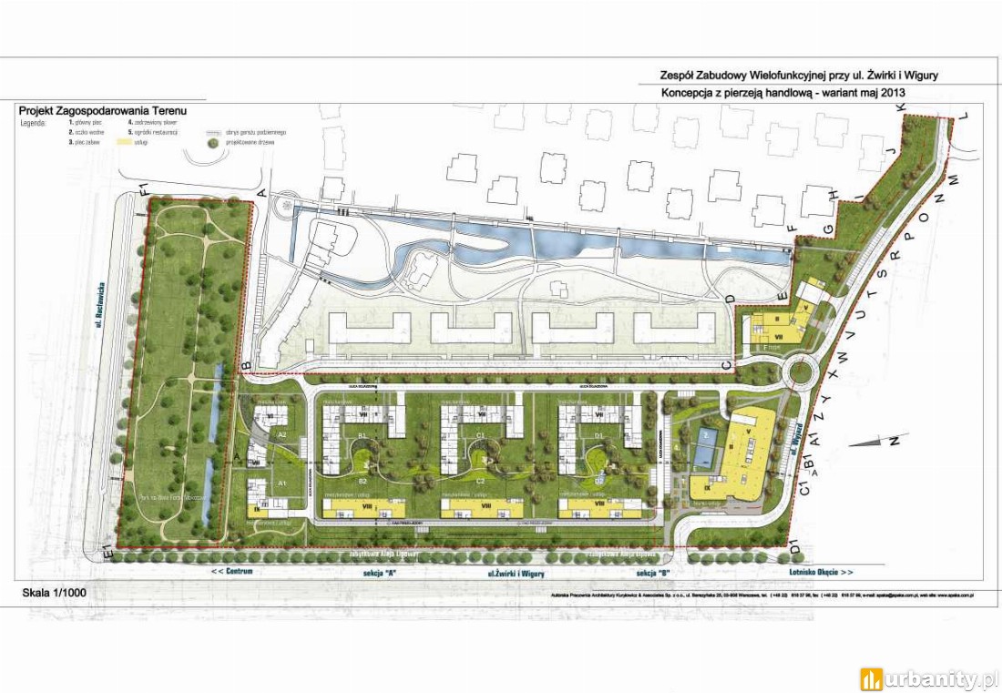
Opis
Zarzucony, warszawski zespół budynków mieszkalnych, miał stać wdłuż Żwirki i Wigury, Wyjazd. Osiedle mieszkaniowe miało być zrealizowane w czwartym kwartale 2014. Powierzchnia handlowa tych budynków mieszkalnych miała wynosić 44700 metrów kwadratowych, natomiast biurowa 16400 metrów kwadratowych. Budynek to inwestycja deweloperska Qualia Development. W odległości 54 metrów powstaje osiedle Marina Mokotów II, 98 metrów dalej znajduje się osiedle Marina Mokotów WI 1/WI 2, a 200 metrów dalej znajduje się Lipowy Office Park.
Ostatnio zmodyfikowano 2018-06-15 10:27:55
Wizualizacja Osiedle Qualia
Wiadomości o Osiedle Qualia
- Qualia - nowa inwestycja przy ul. Żwirki i Wigury w Warszawie 2013-07-04 07:28:39
Powiązane firmy
- Autorska Pracownia Architektury Kuryłowicz & Associates - projekt koncepcyjny
- Qualia Development - deweloper
Forum opinii Osiedle Qualia
Brak wpisów.