Nowa dzielnica mieszkaniowa na poprzemysłowym terenie na Targówku. Pomóc ma "lex deweloper"
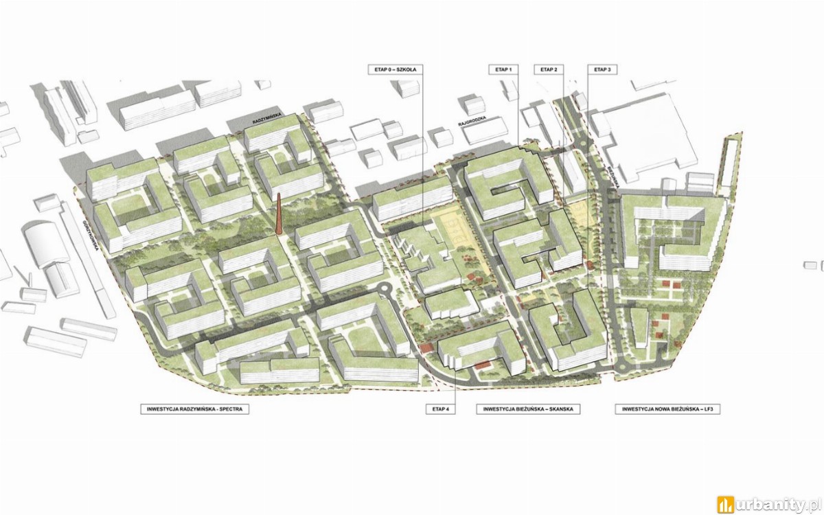
Zdegradowany i niedostępny dla mieszkańców teren przy ulicy Bieżuńskiej na warszawskim Targówku może wkrótce się przekształcić w nową dzielnicę mieszkaniową. Spółka z grupy Skanska planuje w ramach specustawy mieszkaniowej zrealizować projekt, którego częścią będzie m.in. budowa nowej szkoły podstawowej.
Spółka Skanska Residential Development Poland szykuje w ramach specustawy mieszkaniowej "lex deweloper" nową inwestycję na warszawskim Targówku. Na poprzemysłowym terenie o wielkości około 39 437 mkw., na którym w przeszłości prowadzono działalność mleczarską, powstać ma nowa dzielnica mieszkaniowa.
Koncepcja inwestycji przy ulicy Bieżuńskiej 1 na Targówku zakłada budowę czterech budynków mieszkaniowych z lokalami usługowymi w parterach. Oferta ma składać się z 632 mieszkań o zróżnicowanych metrażach i strukturze oraz ponad 2 400 metrów kwadratowych dedykowanych pod działalność komercyjną. Łączna powierzchnia użytkowa PUM wyniesie około 35 570 mkw.
Częścią nowego osiedla będzie ogólnodostępne tereny zieleni z ponad 220 nowymi drzewami. Mieszkańcy i użytkownicy lokali usługowych będą mieli do dyspozycji 628 miejsc postojowych dla samochodów. W ramach tej liczby 28 miejsca postojowe przeznaczono dla obsługi funkcji usługowych. Na terenie osiedla znajdzie się także około 1500 miejsc dla rowerów.
Zabudowę zaplanowano w układzie kwartałowym, umożliwiającym etapową realizację całego zespołu. Projekt obejmuje trzy kwartały zabudowy mieszkaniowej oraz uzupełniającą zabudowę od strony terenów kolejowych.
Inwestor zadeklarował także realizację infrastruktury towarzyszącej, w tym budowę szkoły podstawowej dla klas I-III dla około 200 uczniów i przekazanie jej wraz z działką dla Dzielnicy Targówek, przebudowę ulicy Bieżuńskiej, a także skrzyżowania ulic Radzymińskiej, Bieżuńskiej i Trockiej, wykonanie studni oligoceńskiej oraz utworzenie ogólnodostępnych terenów zieleni i rekreacji z urządzeniami sportowymi i boiskiem.
wiz. WWAA
W odległości około 800 metrów od planowanej inwestycji znajduje się m.in. stacja metra. Generalnym projektantem inwestycji jest pracownia JEMS Architekci, natomiast za projekt szkoły odpowiada biuro WWAA. Projekt zieleni przygotowało ABIES ARCHITEKTURA KRAJOBRAZU.
Od 27 lutego do 25 marca 2026 roku deweloper prowadzi konsultacje.
Spółka Skanska Residential Development Poland szykuje w ramach specustawy mieszkaniowej "lex deweloper" nową inwestycję na warszawskim Targówku. Na poprzemysłowym terenie o wielkości około 39 437 mkw., na którym w przeszłości prowadzono działalność mleczarską, powstać ma nowa dzielnica mieszkaniowa.
Częścią nowego osiedla będzie ogólnodostępne tereny zieleni z ponad 220 nowymi drzewami. Mieszkańcy i użytkownicy lokali usługowych będą mieli do dyspozycji 628 miejsc postojowych dla samochodów. W ramach tej liczby 28 miejsca postojowe przeznaczono dla obsługi funkcji usługowych. Na terenie osiedla znajdzie się także około 1500 miejsc dla rowerów.
Inwestor zadeklarował także realizację infrastruktury towarzyszącej, w tym budowę szkoły podstawowej dla klas I-III dla około 200 uczniów i przekazanie jej wraz z działką dla Dzielnicy Targówek, przebudowę ulicy Bieżuńskiej, a także skrzyżowania ulic Radzymińskiej, Bieżuńskiej i Trockiej, wykonanie studni oligoceńskiej oraz utworzenie ogólnodostępnych terenów zieleni i rekreacji z urządzeniami sportowymi i boiskiem.
wiz. WWAA
W odległości około 800 metrów od planowanej inwestycji znajduje się m.in. stacja metra. Generalnym projektantem inwestycji jest pracownia JEMS Architekci, natomiast za projekt szkoły odpowiada biuro WWAA. Projekt zieleni przygotowało ABIES ARCHITEKTURA KRAJOBRAZU.
Od 27 lutego do 25 marca 2026 roku deweloper prowadzi konsultacje.
Najnowsze wiadomości
-
2026-04-15 10:06:06
Zbliża się połączenie tunelu z przystankiem pod Dworcem Zachodnim. Pierwsza podziemna trasa tramwajowa w stolicy
-
2026-04-15 12:50:08
Wrocław rusza z budową wielkiego centrum sportowego. Powstanie m.in. 11 boisk piłkarskich oraz korty tenisowe
-
2026-04-15 08:18:25
Chiński inwestor z sektora elektromobilności z inwestycją w Polsce. Fabryka będzie gotowa w tym roku
-
2026-04-15 07:59:26
Waterfront przyciąga coworking klasy premium. Gdynia z największą transakcją roku
-
2026-04-15 07:06:31
Pierwszy taki biurowiec w Polsce. Inwestycja w centrum Poznania z unikalnym certyfikatem bezpieczeństwa
-
2026-04-14 17:52:40
Nowe gmachy Sejmiku i Sądu Apelacyjnego w ścisłym centrum Warszawy. Jest wykonawca inwestycji
-
2026-04-14 14:29:57
Rusza budowa nowej hali widowiskowo-sportowej w Warszawie. Podpisano umowę z wykonawcą
-
2026-04-14 12:02:21
Plac Wiślany z ofertą ponad 30 sklepów. Potwierdzono kolejnych najemców inwestycji na Mokotowie
-
2026-04-14 11:19:01
Jedna z największych inwestycji biurowo-hotelowych w centrum Warszawy osiągnęła docelową wysokość ponad 130 metrów
-
2026-04-14 10:59:17
To będzie jedyny taki obiekt w Porcie Gdynia. Rusza inwestycja za ponad 223 mln zł