Bieżuńska 1
Warszawa, Bieżuńska
1
Informacje
- Dzielnica
- Targówek
- Otaczające ulice
- Bieżuńska
- Rodzaj struktury
- Kompleks
- Funkcja główna
- mieszkalny
- Funkcja dodatkowa
- handlowo-usługowy
- Status
- planowany
- Inwestor/deweloper
- Skanska Residential Development Poland
Dane techniczne
- Powierzchnia handlowo-usługowa
- 2400 m2
- Powierzchnia mieszkalna
- 35570 m2
- Lokale mieszkalne
- 632
- Miejsca parkingowe
- 628
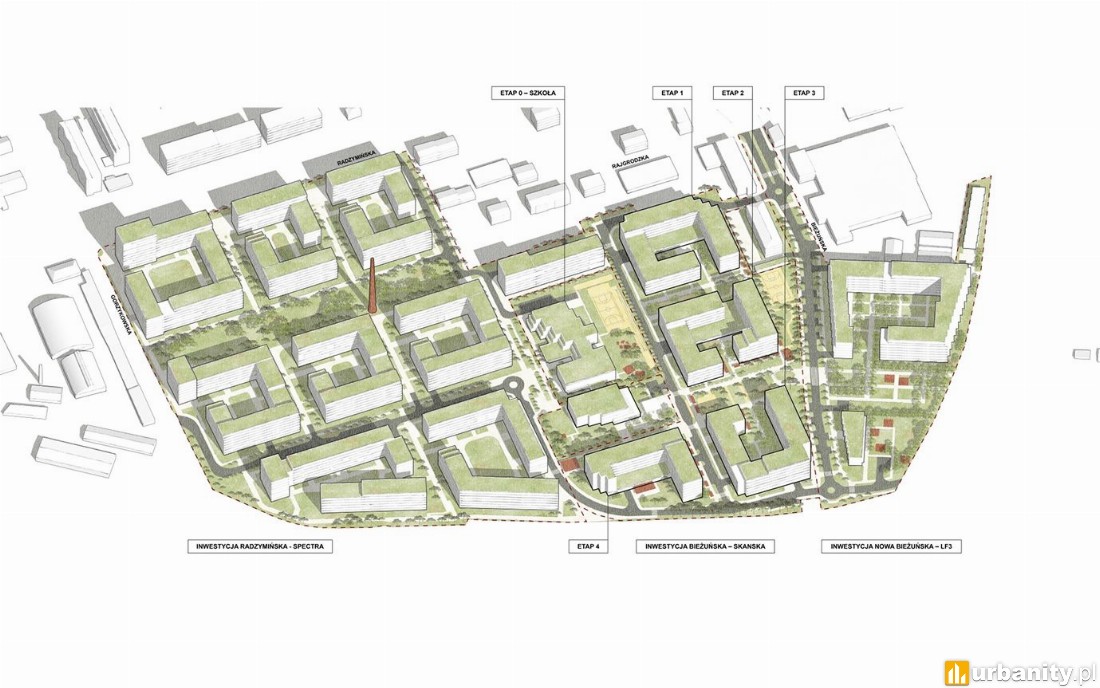
Opis
Zespół budynków mieszkalnych Bieżuńska 1 ma powstać w Warszawie w granicach dzielnicy Targówek. Powierzchnia handlowa tego osiedla mieszkaniowego ma sięgnąć prawie 36 tys. m.kw., natomiast handlowa prawie 36 tys. m.kw.. Deweloperem inwestycji jest Skanska Residential Development Poland. Nieopodal znajdują się osiedle Radzymińska 121/123, budynek Nova Trocka oraz osiedle Przystanek Targówek.
Informacje dodatkowe
- inwestycja realizowana w ramach specustawy mieszkaniowej "lex deweloper"
- w ramach osiedla powstanie szkoła podstawowa dla klas I-III dla około 200 uczniów
- częścią nowego osiedla będzie ogólnodostępne tereny zieleni z ponad 220 nowymi drzewami
Ostatnio zmodyfikowano 2026-02-27 11:47:15
Wizualizacje Bieżuńska 1
Wiadomości o Bieżuńska 1
Powiązane firmy
- Skanska Residential Development Poland - deweloper
Forum opinii Bieżuńska 1
Brak wpisów.