
Filharmonia Koszalińska im. Stanisława Moniuszki
Koszalin

Informacje
- Otaczające ulice
- Zwycięstwa, Piastowska
- Rodzaj struktury
- Budynek
- Rodzaj zabudowy
- niska
- Funkcja główna
- kultury i rozrywki
- Strona www
- www.filharmoniakoszalinska.pl
- Status
- ukończony
- Rozpoczęcie budowy
- 2010 lipiec
- Zakończenie budowy
- 2013 wrzesień
Dane techniczne
- Kondygnacje nadziemne
- 4
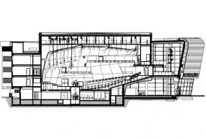
Opis
Filharmonia Koszalińska im. Stanisława Moniuszki to trzypiętrowa budowla, która powstała w mieście Koszalin, zlokalizowana przy Zwycięstwa, Piastowskiej. Budowa gmachu rozpoczęła się w lipcu 2010 i trwała 38 miesięcy. Konstrukcją obiektu zajęły się spółki Elektrobudowa oraz Przedsiębiorstwo Budowlane Kuncer. W odległości 101 metrów znajduje się gmach Zwycięstwa 109, 342 metrów dalej znajduje się gmach Siedziba Redakcji Głosu Pomorza, a 357 metrów dalej znajduje się gmach Villa Moderna.
Informacje dodatkowe
- głównym elementem projektowanego budynku jest sala koncertowa na 520 osób z estradą na pełną 70-osobową orkiestrę i chór na 40 głosów
- inwestycja ma kosztować około 42 miliony złotych
- sala koncertowa powstanie w miejscu obecnego parkingu przy ul. Piastowskiej
Ostatnio zmodyfikowano 2015-11-24 09:39:00
Zdjęcia Filharmonia Koszalińska im. Stanisława Moniuszki
Wiadomości o Filharmonia Koszalińska im. Stanisława Moniuszki
- 14 firm ubiega się o zlecenie budowy filharmonii w Koszalinie 2010-05-13 15:34:06
- Ogłoszono przetarg na budowę filharmonii w Koszalinie 2010-04-10 12:42:22
Powiązane firmy
- Autorska Pracownia Architektoniczna - Jacek Bułat
- Elektrobudowa - generalny wykonawca
- Przedsiębiorstwo Budowlane Kuncer - generalny wykonawca
Forum opinii Filharmonia Koszalińska im. Stanisława Moniuszki
Brak wpisów.