Sąd Rejonowy
Szczecinek, Bohaterów Warszawy
42
Informacje
- Otaczające ulice
- Bohaterów Warszawy
- Kod pocztowy
- 78-400
- Rodzaj struktury
- Budynek
- Rodzaj zabudowy
- niska
- Funkcja główna
- administracji państwowej
- Funkcja dodatkowa
- biurowy
- Status
- ukończony
- Rozpoczęcie budowy
- 2012 listopad
- Zakończenie budowy
- 2016 styczeń
- Przebudowy
- 2012 listopad - 2016 styczeń (przebudowa istniejącego budynku Sądu Rejonowego)
Dane techniczne
- Kondygnacje nadziemne
- 4
- Powierzchnia użytkowa
- 1584 m2
- Powierzchnia zabudowy
- 398 m2
- Kubatura
- 7335 m3
Opis
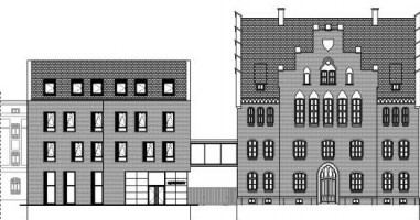
Obiekt przy Bohaterów Warszawy 42 to czterokondygnacyjny gmach, który został zrealizowany w mieście Szczecinek. Budowa budynku Sąd Rejonowy rozpoczęła się w listopadzie 2012, a zakończyła się w styczniu 2016 roku. Powierzchnia użytkowa tego budynku sięga niemal 2 tys. metrów kwadratowych. Przedsiębiorstwo Budownictwa Ogólnego i Usługi Inwestycyjne Piotr Flens jest generalnym wykonawcą budynku, a pracownią w której powstał projekt jest NAAN Architekci. Niedaleko znajdują się Galeria HosSo i Regionalne Centrum Edukacji Ekologicznej oraz budowany jest Kompleks hotelowo-konferencyjny Kronospan.
Informacje dodatkowe
- inwestycja obejmuje budowę nowego budynku sądu rejonowego, połączonego łącznikiem z istniejącym budynkiem, zagospodarowanie terenu, wykonanie parkingu, dróg, zieleni, małej architektury, zjazdów i wjazdów na posesję
Ostatnio zmodyfikowano 2018-01-29 08:19:14
Wizualizacje Sąd Rejonowy
Powiązane firmy
- CH2 Architekci - projekt architektoniczny
- NAAN Architekci - projekt architektoniczny
- Przedsiębiorstwo Budownictwa Ogólnego i Usługi Inwestycyjne Piotr Flens - generalny wykonawca
Forum opinii Sąd Rejonowy
Brak wpisów.