 
            
                
                
                    Galeria Tuszewska
                    
                    Łowicz                
                
                             
                        
                    Informacje
- Otaczające ulice
- Tuszewska, Prymasowska
- Rodzaj struktury
- Budynek
- Rodzaj zabudowy
- niska
- Funkcja główna
- handlowo-usługowy
- Status
- zatwierdzony
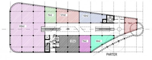
Dane techniczne
- Kondygnacje nadziemne
- 3
- Powierzchnia całkowita
- 4442 m2
- Powierzchnia handlowo-usługowa
- 3408 m2
- Lokale handlowo-usługowe
- 30
- Miejsca parkingowe
- 102
Opis
Galeria Tuszewska to trzykondygnacyjne centrum handlowe, które zostanie wzniesione w Łowiczu przy Tuszewskiej, Prymasowskiej. Całkowita powierzchnia tego budynku handlowego to będzie ponad 4 tys. m2, z czego największą część zajmie powierzchnia handlowa - ponad 3 tys. m2, mieści się na niej 30 sklepów. W najbliższej okolicy stoją gmach Intermarche i Zespół Opieki Zdrowotnej oraz przebudowywany jest budynek Ulica 17 Stycznia.
                Ostatnio zmodyfikowano 2014-05-29 20:51:35
                            
        
                    
             
         
                         
                         
                         
                         
                         
                         
                         
                                 
                                 
                                 
                                 
                                 
                                 
                                 
                                 
   
Forum opinii Galeria Tuszewska
Brak wpisów.