
Szpital Miejski pw. św. Łukasza
Piekary Śląskie, Szpitalna
11

Informacje
- Inne nazwy
- Piekarskie Centrum Medyczne
- Otaczające ulice
- Szpitalna
- Kod pocztowy
- 41-940
- Rodzaj struktury
- Budynek
- Rodzaj zabudowy
- średniowysoka
- Funkcja główna
- służby zdrowia
- Status
- ukończony
- Rozpoczęcie budowy
- 2015 styczeń
- Zakończenie budowy
- 2016 styczeń
Dane techniczne
- Kondygnacje nadziemne
- 5
- Kondygnacje podziemne
- 1
- Powierzchnia całkowita
- 6500 m2
- Powierzchnia użytkowa
- 5955 m2
- Kubatura
- 35564 m3
Opis
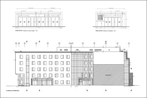
Szpital Miejski pw. św. Łukasza został zrealizowany w Piekarach Śląskich przy ul. Szpitalnej 11. Czasem funkcjonuje pod nazwą Piekarskie Centrum Medyczne. Konstrukcja budynku opieki zdrowotnej wystartowała w styczniu 2015, a dobiegła końca w pierwszym kwartale 2016 roku. Powierzchnia całkowita tej czteropiętrowej placówki zdrowotnej wynosi 6500 m.kw., zaś użytkowa 5955 m.kw.. Koncepcję architektoniczną gmachu opracowała Autorskiej Pracowni Architektury Sałasińscy. Niedaleko stoją Urząd Miasta , Biurowiec Tritex i zespół budynków Rynek.
Informacje dodatkowe
- inwestycja obejmuje rozbudowę szpitala, w ramach której powstanie nowy dwusegmentowy budynek, częściowo podpiwniczony
Ostatnio zmodyfikowano 2017-11-21 07:45:35
Zdjęcia Szpital Miejski pw. św. Łukasza
Powiązane firmy
- Autorska Pracownia Architektury Sałasińscy - projekt architektoniczny
W pobliżu
pk
Gość
Jaśko
Gość