Miniaturka Budynek administracyjny Augustyńskiego 1

Budynek administracyjny Augustyńskiego 1
Gdańsk, Augustyńskiego 1

Mapa
WYNAJMIJ TU BIURO +48 729086019

Informacje

Otaczające ulice
Augustyńskiego
Kod pocztowy
80-810
Rodzaj struktury
Budynek
Rodzaj zabudowy
średniowysoka
Funkcja główna
administracji państwowej
Funkcja dodatkowa
biurowy
Status
ukończony
Przebudowy
2015 listopad - 2017 styczeń (adaptacja budynku na funkcję administracyjno-biurową)

Dane techniczne

Kondygnacje nadziemne
5
Powierzchnia użytkowa
6063 m2
Powierzchnia zabudowy
1979 m2

Opis

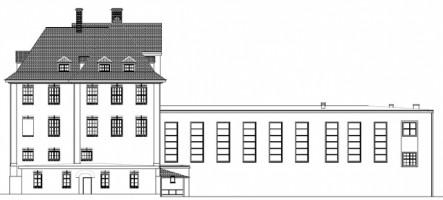
Budynek administracyjny Augustyńskiego 1 to Gdańska budowla przy ulicy Augustyńskiego 1. Użytkowa powierzchnia tego pięciokondygnacyjnego obiektu wynosi ponad 6 tys. m.kw.. Obiekt został zbudowany przez MAZ z Gdańskam. W odległości 225 metrów przebudowywany jest Pomerania Office Park, 255 metrów dalej znajduje się Biurowiec Logo, a 316 metrów dalej znajduje się budynek Waterlane Island.

Informacje dodatkowe

  • inwestycja polega na adaptacji budynku przy ul. Augustyńskiego 1 na funkcję administracyjno-biurową
  • przebudowa realizowana jest w systemie Zaprojektuj i Zbuduj, a jej inwestorem jest Urząd Marszałkowski Województwa Pomorskiego
Ostatnio zmodyfikowano 2018-07-09 10:32:10

Powiązane firmy

  • Anko - projektant
  • MAZ - generalny wykonawca adaptacji

Forum opinii Budynek administracyjny Augustyńskiego 1

Brak wpisów.

Napisz opinię

Komentujesz jako gość.